HELLES BÜRO UND LAGERFLÄCHE FREI - neu adaptiert - inkl. Heizkostenakonto
Nähe Hannovermarkt: U 6 Jägerstraße!
Schöne, angenehme Büroräume im 1. Liftstock, neu adaptiert-
ideal auch für Schulungszwecke
Weiters stehen im Haus aktuell 2 Flächen für die Lagernutzung mit je ca. 350 m2 frei.
Fordern Sie das Exposé an.
- Zugänge mit dem Lift oder über das Stiegenhaus
- Spiegelrasterleuchten
- abgehängte Decken
- guter Allgemeinzustand, Kunststofffenster, gesamt frisch ausgemalt
- pflegeleichter Laminatboden
- Gaszentralheizung
- Lifte: Personenzug
- Fenster sind öffenbar
- tw. Kühlung mit Split-Klimageräten
- EDV- u. Telefonverkabelung mit Fensterbankverkabelung
- teilweise innen liegender Blendschutz in Form von Rollos
- möblierte Küche, komplett ausgestattet mit Spüle, Kühlschrank und E-Herd vorhanden
- tw. deckenhohe Aktenschränke
Die flexiblen Grundrisse ermöglichen eine vielseitige Nutzbarkeit der Räume, je nach Wunsch des Mieters sind Einzel-, aber auch Open-Space-Büros möglich.
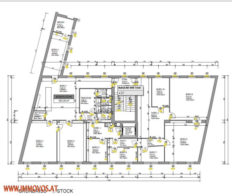
Derzeitige Raumanordnung - siehe Bestandsplan - Aktuell:
Empfangsbereich und 10 Zimmer, 1 Duschbad mit Toilette, Behindertentoilette extra, Teeküche
VERKEHRSANBINDUNG
U-Bahn: U6 Jägerstraße (ca. 500m/c. 8 Gehminuten), U4 Friedensbrücke (ca. 750m/ca. 10 Gehminuten)
Bus: 5A , 37A
Straßenbahn: 31, 33, 5
Energieausweis: HBW=171kWh/m².a, fGEE=1,86
Kaution: 3 BMM
Provision: 3 BMM + 20% USt
weitere verfügbare Flächen im Haus:
ca. 350 m2 Lager- oder Bürofläche mit Raumhöhe von ca. 3,8 m bis 3,92 m mit Lastenaufzug mit Bodenbelastung
2000 kg /m2, Maße (130 cm x 213 cm) im 2. Stockwerk,
Miete monatlich: € 10/m²
Betriebskosten: € 2,50/m²/netto inkl. Heizung, Wasser-, Warmwasser- und Liftkosten
Zuzüglich 20 Prozent USt. (bei Anmietung durch einen Verein entfällt die USt).
Kosten für die Mietvertragserrichtung
Vergebührung des Mietvertrages
Daniela Erlach, erlach@immovos.at, Tel. 0043 69911942229
Schöne, angenehme Büroräume im 1. Liftstock, neu adaptiert-
ideal auch für Schulungszwecke
Weiters stehen im Haus aktuell 2 Flächen für die Lagernutzung mit je ca. 350 m2 frei.
Fordern Sie das Exposé an.
- Zugänge mit dem Lift oder über das Stiegenhaus
- Spiegelrasterleuchten
- abgehängte Decken
- guter Allgemeinzustand, Kunststofffenster, gesamt frisch ausgemalt
- pflegeleichter Laminatboden
- Gaszentralheizung
- Lifte: Personenzug
- Fenster sind öffenbar
- tw. Kühlung mit Split-Klimageräten
- EDV- u. Telefonverkabelung mit Fensterbankverkabelung
- teilweise innen liegender Blendschutz in Form von Rollos
- möblierte Küche, komplett ausgestattet mit Spüle, Kühlschrank und E-Herd vorhanden
- tw. deckenhohe Aktenschränke
Die flexiblen Grundrisse ermöglichen eine vielseitige Nutzbarkeit der Räume, je nach Wunsch des Mieters sind Einzel-, aber auch Open-Space-Büros möglich.
Derzeitige Raumanordnung - siehe Bestandsplan - Aktuell:
Empfangsbereich und 10 Zimmer, 1 Duschbad mit Toilette, Behindertentoilette extra, Teeküche
VERKEHRSANBINDUNG
U-Bahn: U6 Jägerstraße (ca. 500m/c. 8 Gehminuten), U4 Friedensbrücke (ca. 750m/ca. 10 Gehminuten)
Bus: 5A , 37A
Straßenbahn: 31, 33, 5
Energieausweis: HBW=171kWh/m².a, fGEE=1,86
Kaution: 3 BMM
Provision: 3 BMM + 20% USt
weitere verfügbare Flächen im Haus:
ca. 350 m2 Lager- oder Bürofläche mit Raumhöhe von ca. 3,8 m bis 3,92 m mit Lastenaufzug mit Bodenbelastung
2000 kg /m2, Maße (130 cm x 213 cm) im 2. Stockwerk,
Miete monatlich: € 10/m²
Betriebskosten: € 2,50/m²/netto inkl. Heizung, Wasser-, Warmwasser- und Liftkosten
Zuzüglich 20 Prozent USt. (bei Anmietung durch einen Verein entfällt die USt).
Kosten für die Mietvertragserrichtung
Vergebührung des Mietvertrages
Daniela Erlach, erlach@immovos.at, Tel. 0043 69911942229
Überblick
Objekt ID:
46845
Bundesland:
Wien
Bezirk:
Wien 20.,Brigittenau
Ort:
Wien 20.,Brigittenau
Lage:
Nähe Hannovermarkt
Verkehrsanbindung:
U 6, U 4, Linien 30,31, 2, 5
Kosten
Gesamtmiete (inkl. USt):
€ 4.800,00
Miete (ex. USt):
€ 3.200,00
Betriebskosten (ex. USt):
€ 800,00
Gesamtbelastung (inkl. USt):
€ 4.800,00
USt gesamt:
€
800,00
Kaution:
3 BMM
Provision:
3 BMM
Flächen
Wohnfläche ca.:
320,00 m²
Nutzfläche ca.:
320,00 m²
Detaildaten
Verfügbar ab:
ab sofort
Befristung:
unbefristet
Zimmer:
10
Stockwerk:
1
Bäder:
1
Anzahl WCs:
2
Alter:
Neubau
Heizung:
Zentralheizung
Heizwärmebedarf:
171 kWH/m²/Jahr
fGEE:
1,86
Boden:
Laminat
Boden:
Fliesen
Ausstattung:
Einbauküche
Lift
Teilmöbliert
Klimaanlage
Kabel oder Sat TV
Isolierfenster




