SANIERTES BÜRO IM FREIHAUSVIERTEL - 2 EINGÄNGE - TEILBAR
LICHTDURCHFLUTET - NEUE FENSTER - NEUER BODENBELAG
Bezug nach Sanierung!
Teilweise Hofruhelage mit schönem Ausblick.
Teilbar in ca. 88 m2 und ca. 79 m2 - 2 Eingänge
Helle Büroräume Nahe Wiedner Hauptstraße, Technische Universität
mit bester Infrastruktur in Karlsplatz-Nähe.
Ideale Verkehrsanbindungen:
*U1-Station Taubstummengasse
*Linien 1, 62, Badner Bahn
Kunststofffenster, Hauszentralheizung mit Öl, Internetanschluß, Kabelkanäle an der Wand
Raumhöhen ab ca. 2,65 m, 4-Personen-Lift
Raumaufteilung: Flexibel gestaltbar!
- zentrales Vorzimmer
- 2 Toiletten (1 Teeküche, 1 Waschraum vorhanden)
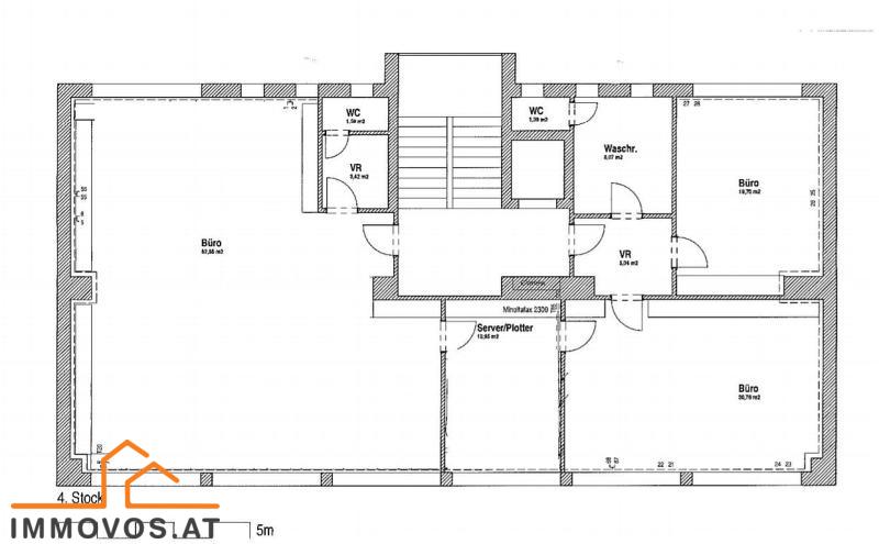
- 5 Arbeitsräume (Raumgrößen ca. 83 m2, ca. 14 m2, ca. 31 m2, ca. 20 m2
- großer Serverraum
Lage:
3. Liftstock, nicht barrierefrei erreichbar, der 4-Personenlift startet im Mezzanin,
Bruttomonatsmiete inkl. BK- und Liftkosten: € 2.764,92-
Dias monatliche Heizkostenakonto beträgt Eur 400,- zzgl. 20 % USt pro Monat.
Der zugespielte Grundriss zeigt den Umriss vom 4. Stock.
Eine Planskizze vom 3. OG finden Sie im Exposé.
In der Nachbarschaft gibt es einen Stellplatz hofseitig zur Miete: € 100,- -zzgl. 20 % USt (keine E-Autos!)
Auf der Favoritenstraße kann man Stellplätze zur Bruttomiete von € 130,- anmieten.
Kontakt: Frau Daniela Erlach, Tel ++4369911942229 e-mail: erlach@immovos.at
Bezug nach Sanierung!
Teilweise Hofruhelage mit schönem Ausblick.
Teilbar in ca. 88 m2 und ca. 79 m2 - 2 Eingänge
Helle Büroräume Nahe Wiedner Hauptstraße, Technische Universität
mit bester Infrastruktur in Karlsplatz-Nähe.
Ideale Verkehrsanbindungen:
*U1-Station Taubstummengasse
*Linien 1, 62, Badner Bahn
Kunststofffenster, Hauszentralheizung mit Öl, Internetanschluß, Kabelkanäle an der Wand
Raumhöhen ab ca. 2,65 m, 4-Personen-Lift
Raumaufteilung: Flexibel gestaltbar!
- zentrales Vorzimmer
- 2 Toiletten (1 Teeküche, 1 Waschraum vorhanden)
- 5 Arbeitsräume (Raumgrößen ca. 83 m2, ca. 14 m2, ca. 31 m2, ca. 20 m2
- großer Serverraum
Lage:
3. Liftstock, nicht barrierefrei erreichbar, der 4-Personenlift startet im Mezzanin,
Bruttomonatsmiete inkl. BK- und Liftkosten: € 2.764,92-
Dias monatliche Heizkostenakonto beträgt Eur 400,- zzgl. 20 % USt pro Monat.
Der zugespielte Grundriss zeigt den Umriss vom 4. Stock.
Eine Planskizze vom 3. OG finden Sie im Exposé.
In der Nachbarschaft gibt es einen Stellplatz hofseitig zur Miete: € 100,- -zzgl. 20 % USt (keine E-Autos!)
Auf der Favoritenstraße kann man Stellplätze zur Bruttomiete von € 130,- anmieten.
Kontakt: Frau Daniela Erlach, Tel ++4369911942229 e-mail: erlach@immovos.at
Überblick
Objekt ID:
46599
Bundesland:
Wien
Bezirk:
Wien 4.,Wieden
Ort:
Wien 4.,Wieden
Lage:
Karlsplatz, Wiedner Hauptstraße
Verkehrsanbindung:
U 4, U1, Badner Bahn, Linie 62
Kosten
Gesamtmiete (inkl. USt):
€ 2.764,92
Miete (ex. USt):
€ 2.054,10
Betriebskosten (ex. USt):
€ 250,00
Gesamtbelastung (inkl. USt):
€ 2.764,92
USt gesamt:
€
460,82
Kaution:
3 MM
Provision:
3 BMM
Flächen
Wohnfläche ca.:
167,00 m²
Nutzfläche ca.:
164,00 m²
Detaildaten
Verfügbar ab:
ab sofort
Befristung:
unbefristet
Baujahr:
1970
Zimmer:
5
Stockwerk:
3
Anzahl WCs:
2
Alter:
Neubau
Heizung:
Zentralheizung
Heizwärmebedarf:
76 kWH/m²/Jahr
fGEE:
1,41
Ausstattung:
Abstellraum
Lift
Teilmöbliert
Parkplatz
Klimaanlage
Kabel oder Sat TV
Isolierfenster




