Neustift am Walde "DAS"Familiendomizil - viel Platz, Garten und Garage
Ein Townhouse mit Freiflächen und Garagenplatz in Neustift am Walde:
Dieses Familien-Juwel hat den Charakter eines Town-Houses. Hier wohnen Sie als Familie auf 3 Ebenen mit einer idealen Aufteilung: Die Kinder können sich im Freizeitbereich austoben und niemand wird genervt klopfen ...
Die Wohnung befindet sich in Haus 1 der Liegenschaft und erstreckt sich über 3 Ebenen.
Jede Ebene verfügt über einen Eingang vom Stiegenhaus mit Sicherheitseingangstür und dem Liftausstieg nebenan. D.h. man hat überall Zutritt, ohne Stufen nehmen zu müssen und damit barrierefrei.
Diesen Lift teilt sich die Einheit mit 2 weiteren Eigentümern im Haus 1.
D.h. die Nachbarschaft ist überschaubar und das Nebeneinander schon familiär.
Die Aufteilung der Räume ist nach Funktion gegliedert:
Der Wohn-Essbereich mit offener Küche von ca. 35 m2 samt Wohnraum befindet sich in der obersten resp. 3. Ebene. Direkt vor dem Wohnraum befindet sich der Garten von ca. 70 m2, der seitlich zur benachbarten Einheit abgegrenzt ist. Der durch eine Pergola überdachte Sitzplatz auf der Terrasse mit ca. 11 m2 bietet einen sonnigen Relax-Bereich, die Terrasse ist südseitig ausgerichtet. Hinter der Küche befindet sich das Bad mit WC und noch ein Schlafraum (für die Eltern) von ca. 12,8 m2.
Der gepflegte Garten hätte eine ausreichende Platzreserve für einen Whirlpool. An die mit Platten befestigte Terrasse schließt eine pflegeleichte Rasenfläche an, Abtrennung mit Zaun und Sichtschutz zur benachbarten Fläche. Eine dichte hohe Hecke schützt den Garten seitlich in Richtung Nord-Westen.
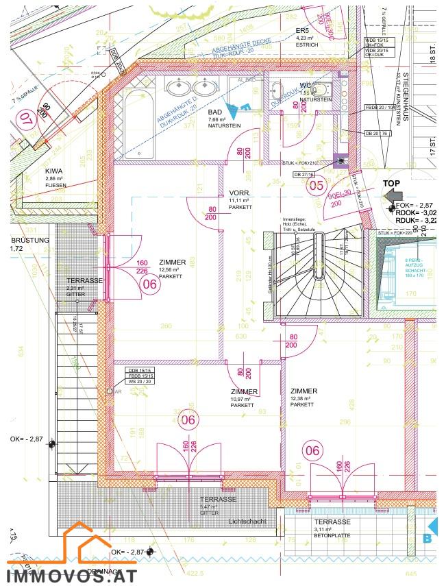
In der mittleren Ebene 2 stehen 3 Kinderzimmer zur Verfügung, die separat über den zentralen Gang begehbar sind sowie ein großzügiges Bad mit separatem WC. Alle Zimmer haben Terrassentüren mit der Möglichkeit, auf die Terrassen bzw. den kleinen Grünbereich rund um die Wohnung zu betreten. Die Größe der Zimmer beträgt ca. 12,6 m2, ca. 11 m2 und ca. 12,4 m2.
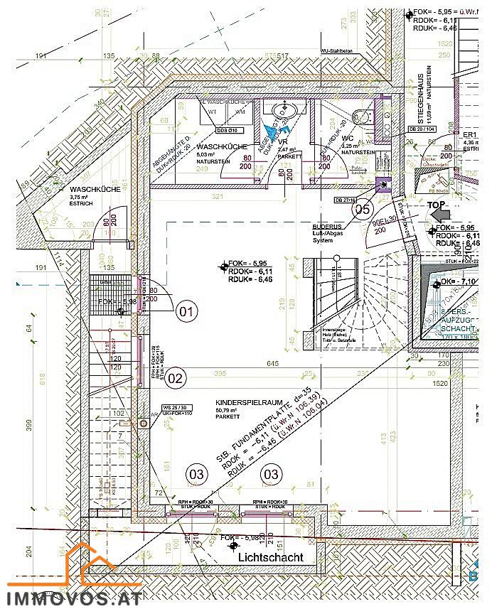
In der untersten Ebene bietet ein Raum von gut 50 m2 ! mit ebenfalls Balkontüren/Tageslicht viel Platz für einen Kinderspielbereich oder ein Büro bzw. einen eigenen Bereich für Gäste (zB. die Großeltern).
Derzeit wird der Bereich von den Bewohnern als Hobbyraum verwendet.
Ein raumhoher Schrankverbau bietet jede Menge Stauraum, der von einer Familie ja stets reichlich benötigt wird.
Dieser autarke Bereich verfügt über ein sep. WC mit Waschbecken u. den Technikraum (Waschküche, Stauraum).
Wenn Sie hier Besucher oder Kunden empfangen möchten, ist der separate Eingang perfekt dafür geeignet.
Das Haus wurde mit einer Dämmung versehen. Heizung und Warmwasserbereitung erfolgen mittels Gas-Brenntwertgerät und Fußbodenheizung in den Räumen. Die Böden mit großformatigen Parkettdielen wurden geölt. Die interne Stiege zur Verbindung der Etagen wurde mit Buchenholz-Stufen und -Geländer ausgeführt.
Der Wohnung ist ein Kellerabteil zugeordnet. Der separat verbücherte Garagenplatz (KEIN Stapelparker) ist über den Lift bequem erreichbar. Normale Einfahrtshöhe mit automatischem Tor.
Die Umgebung mit vielen Grünflächen und Einfamilienhäusern ist sehr gepflegt, gediegen und ruhig.
Da der Garten erst vom bestellten Gärtner überarbeitet wird, reichen wir die Bilder von den Freibereichen nach.
Diese Liegenschaft befindet sich NICHT an der Rathstraße!
Einkaufen können Sie an der nahen Rathstraße und entlang der Krottenbachstraße, der Sieveringer Straße oder in Richtung Dornbach im Kern von Neuwaldegg bzw. an der oberen Dornbacherstraße.
Ein PKW ist hier jedenfalls für die täglichen Wege sehr hilfreich.
Für den Schulweg der Kinder gibt es die Verbindung mit den Bus-Linie 35A und 39A, zur Amerikanischen Schule ist es lediglich ein kurzer Weg von wenigen Minuten.
Begehrter Kaufpreis für die Wohnung: EUR 1.300.000,--, Kaufpreis für den Garagenplatz: EUR 40.000,--
Zu den tatsächlich erzielten Kaufpreisen kommt unser Vermittlungshonorar von 3 % der Kaufsumme hinzu + 20 % USt. (brutto 3,6 %) sowie die üblichen Kaufnebenkosten (Grunderwerbsteuer, ggfs. Eintragungsgebühr, Kosten der Vertragserrichtung, ev. Kosten für die Finanzierung u. Verbücherung einer Pfandurkunde).
Wir möchten darauf hinweisen, dass unter bestimmten Voraussetzungen die Eintragungsgebühr noch bis zum 30.6.2026 (Antragstellung) bis zur Höhe von EUR 500.000,-- nicht zum Tragen kommt, für den darüber liegenden Kaufpreis-Anteil in Höhe von 1,1 % verrechnet wird.
Durch die laufende Geschäftsbeziehung zum Abgeber verweisen wir auf ein wirtschaftliches Naheverhältnis.
Es bestehen jedoch weder personelle noch gesellschaftsrechtliche Verflechtungen.
Wir sind als Doppelmakler tätig.
Für KonsumentInnen gilt:
Durch das Inkrafttreten des Fern- und Auswärtsgeschäftegesetzes (FAGG/VRUG) können wir Ihnen erst nach Ihrer Zustimmung zum Verzicht auf die darin festgelegte 14-tägige Rücktrittsfrist bzw. Ihre Bestätigung, dass Sie unser vorzeitiges Tätigwerden wünschen, die Detailunterlagen zu diesem unverbindlichen Immobilienangebot mit Adresse zusenden.
Daher erhalten Sie vorab eine gesonderte Nachricht mit allen Informationen zum FAGG, in der Sie uns diese Zustimmung erteilen können.
Erst nach Erhalt senden wir Ihnen gerne die gewünschten Informationen zu diesem Angebot bzw. geben wir Ihnen die Adresse bekannt, bitte um Verständnis!
Es entstehen Ihnen keine zusätzlichen Kosten durch Ihre erteilte Zustimmung, unser Anspruch auf die vereinbarte Vermittlungsprovision entsteht erst bei einem von uns erfolgreich vermittelten Geschäftsabschluss bzw. bei dessen Rechtswirksamkeit.
Dieses Familien-Juwel hat den Charakter eines Town-Houses. Hier wohnen Sie als Familie auf 3 Ebenen mit einer idealen Aufteilung: Die Kinder können sich im Freizeitbereich austoben und niemand wird genervt klopfen ...
Die Wohnung befindet sich in Haus 1 der Liegenschaft und erstreckt sich über 3 Ebenen.
Jede Ebene verfügt über einen Eingang vom Stiegenhaus mit Sicherheitseingangstür und dem Liftausstieg nebenan. D.h. man hat überall Zutritt, ohne Stufen nehmen zu müssen und damit barrierefrei.
Diesen Lift teilt sich die Einheit mit 2 weiteren Eigentümern im Haus 1.
D.h. die Nachbarschaft ist überschaubar und das Nebeneinander schon familiär.
Die Aufteilung der Räume ist nach Funktion gegliedert:
Der Wohn-Essbereich mit offener Küche von ca. 35 m2 samt Wohnraum befindet sich in der obersten resp. 3. Ebene. Direkt vor dem Wohnraum befindet sich der Garten von ca. 70 m2, der seitlich zur benachbarten Einheit abgegrenzt ist. Der durch eine Pergola überdachte Sitzplatz auf der Terrasse mit ca. 11 m2 bietet einen sonnigen Relax-Bereich, die Terrasse ist südseitig ausgerichtet. Hinter der Küche befindet sich das Bad mit WC und noch ein Schlafraum (für die Eltern) von ca. 12,8 m2.
Der gepflegte Garten hätte eine ausreichende Platzreserve für einen Whirlpool. An die mit Platten befestigte Terrasse schließt eine pflegeleichte Rasenfläche an, Abtrennung mit Zaun und Sichtschutz zur benachbarten Fläche. Eine dichte hohe Hecke schützt den Garten seitlich in Richtung Nord-Westen.
In der mittleren Ebene 2 stehen 3 Kinderzimmer zur Verfügung, die separat über den zentralen Gang begehbar sind sowie ein großzügiges Bad mit separatem WC. Alle Zimmer haben Terrassentüren mit der Möglichkeit, auf die Terrassen bzw. den kleinen Grünbereich rund um die Wohnung zu betreten. Die Größe der Zimmer beträgt ca. 12,6 m2, ca. 11 m2 und ca. 12,4 m2.
In der untersten Ebene bietet ein Raum von gut 50 m2 ! mit ebenfalls Balkontüren/Tageslicht viel Platz für einen Kinderspielbereich oder ein Büro bzw. einen eigenen Bereich für Gäste (zB. die Großeltern).
Derzeit wird der Bereich von den Bewohnern als Hobbyraum verwendet.
Ein raumhoher Schrankverbau bietet jede Menge Stauraum, der von einer Familie ja stets reichlich benötigt wird.
Dieser autarke Bereich verfügt über ein sep. WC mit Waschbecken u. den Technikraum (Waschküche, Stauraum).
Wenn Sie hier Besucher oder Kunden empfangen möchten, ist der separate Eingang perfekt dafür geeignet.
Das Haus wurde mit einer Dämmung versehen. Heizung und Warmwasserbereitung erfolgen mittels Gas-Brenntwertgerät und Fußbodenheizung in den Räumen. Die Böden mit großformatigen Parkettdielen wurden geölt. Die interne Stiege zur Verbindung der Etagen wurde mit Buchenholz-Stufen und -Geländer ausgeführt.
Der Wohnung ist ein Kellerabteil zugeordnet. Der separat verbücherte Garagenplatz (KEIN Stapelparker) ist über den Lift bequem erreichbar. Normale Einfahrtshöhe mit automatischem Tor.
Die Umgebung mit vielen Grünflächen und Einfamilienhäusern ist sehr gepflegt, gediegen und ruhig.
Da der Garten erst vom bestellten Gärtner überarbeitet wird, reichen wir die Bilder von den Freibereichen nach.
Diese Liegenschaft befindet sich NICHT an der Rathstraße!
Einkaufen können Sie an der nahen Rathstraße und entlang der Krottenbachstraße, der Sieveringer Straße oder in Richtung Dornbach im Kern von Neuwaldegg bzw. an der oberen Dornbacherstraße.
Ein PKW ist hier jedenfalls für die täglichen Wege sehr hilfreich.
Für den Schulweg der Kinder gibt es die Verbindung mit den Bus-Linie 35A und 39A, zur Amerikanischen Schule ist es lediglich ein kurzer Weg von wenigen Minuten.
Begehrter Kaufpreis für die Wohnung: EUR 1.300.000,--, Kaufpreis für den Garagenplatz: EUR 40.000,--
Zu den tatsächlich erzielten Kaufpreisen kommt unser Vermittlungshonorar von 3 % der Kaufsumme hinzu + 20 % USt. (brutto 3,6 %) sowie die üblichen Kaufnebenkosten (Grunderwerbsteuer, ggfs. Eintragungsgebühr, Kosten der Vertragserrichtung, ev. Kosten für die Finanzierung u. Verbücherung einer Pfandurkunde).
Wir möchten darauf hinweisen, dass unter bestimmten Voraussetzungen die Eintragungsgebühr noch bis zum 30.6.2026 (Antragstellung) bis zur Höhe von EUR 500.000,-- nicht zum Tragen kommt, für den darüber liegenden Kaufpreis-Anteil in Höhe von 1,1 % verrechnet wird.
Durch die laufende Geschäftsbeziehung zum Abgeber verweisen wir auf ein wirtschaftliches Naheverhältnis.
Es bestehen jedoch weder personelle noch gesellschaftsrechtliche Verflechtungen.
Wir sind als Doppelmakler tätig.
Für KonsumentInnen gilt:
Durch das Inkrafttreten des Fern- und Auswärtsgeschäftegesetzes (FAGG/VRUG) können wir Ihnen erst nach Ihrer Zustimmung zum Verzicht auf die darin festgelegte 14-tägige Rücktrittsfrist bzw. Ihre Bestätigung, dass Sie unser vorzeitiges Tätigwerden wünschen, die Detailunterlagen zu diesem unverbindlichen Immobilienangebot mit Adresse zusenden.
Daher erhalten Sie vorab eine gesonderte Nachricht mit allen Informationen zum FAGG, in der Sie uns diese Zustimmung erteilen können.
Erst nach Erhalt senden wir Ihnen gerne die gewünschten Informationen zu diesem Angebot bzw. geben wir Ihnen die Adresse bekannt, bitte um Verständnis!
Es entstehen Ihnen keine zusätzlichen Kosten durch Ihre erteilte Zustimmung, unser Anspruch auf die vereinbarte Vermittlungsprovision entsteht erst bei einem von uns erfolgreich vermittelten Geschäftsabschluss bzw. bei dessen Rechtswirksamkeit.
Überblick
Objekt ID:
47145
Bundesland:
Wien
Bezirk:
Wien 19.,Döbling
Ort:
Wien 19.,Döbling
Lage:
Neustift am Walde
Verkehrsanbindung:
Linie 35A, 39A, 41A
Kosten
Preis:
€ 1.340.000,00
Provision:
3 % vom Kaufpreis zzgl. 20 % USt.
Flächen
Wohnfläche ca.:
175,00 m²
Terrassenfläche ca.:
20,00 m²
Gartenfläche ca.:
70,00 m²
Detaildaten
Verfügbar ab:
ab sofort
Baujahr:
2010-2012
Zimmer:
5
Geschosse:
4
Stockwerk:
3
Stellplätze Garage:
1
Anzahl Terrassen:
1
Bäder:
2
Anzahl WCs:
3
Alter:
Neubau
Heizung:
Zentralheizung
Fussboden
Befeuerung:
Gas
Heizwärmebedarf:
36,11 kWH/m²/Jahr
fGEE:
1,59
Boden:
Parkett
Boden:
Fliesen
Balkon Ausrichtung:
Sued, NordOst
Ausstattung:
Abstellraum
Barrierefrei
Einbauküche
Küche offen
Lift
Garage
Teilmöbliert
Parkplatz
Tiefgarage
Kabel oder Sat TV
Isolierfenster
Gartennutzung
Rolladen
Sicherheitstechnik




